Construction of Ambedkar Bhawan
    The building of Ambedkar Bhawan is situated at sector-16 karnal near Namaste Chowk. The distance from delhi and chandigarh is same 130 km.
                    Area of Land: 2000 Yards
                    -In March 2012, Advertisement of 2000 yards for Ambedkar Bhawan published in Newspapers.
                    Allotment in feb 2013, Possession in March 2014
                    
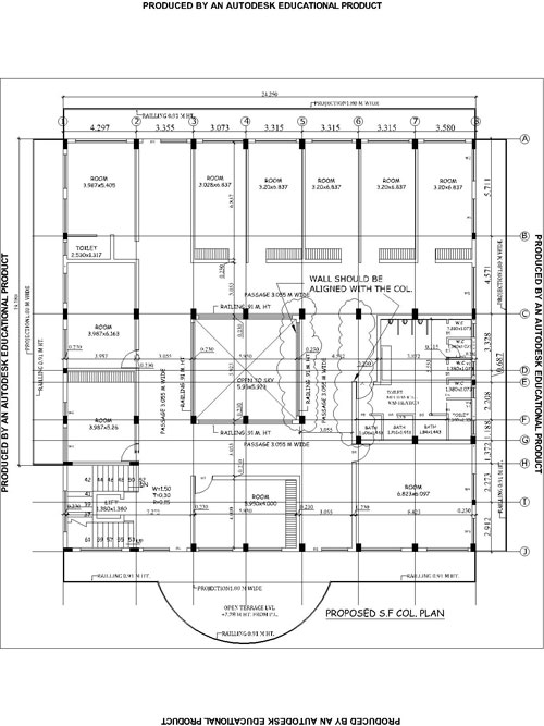
    The plan for construction of Ambedkar Bhawan
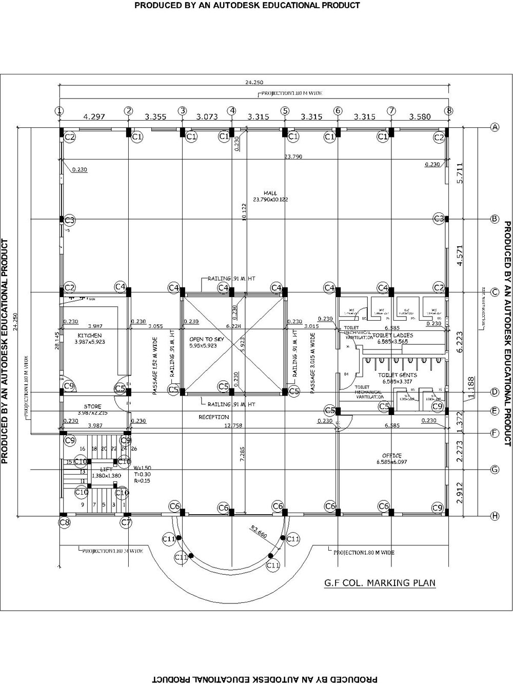
    - 1.  Ground Floor- two halls are constructed.
    
- 
   RAMA BAI AMBEDKAR SABHAGAR
 
        - 
           	Jeet Ram Kait memorial Hall
        
 
        - 
          	Office of Sabha
        
 
        - 
           	Kitchen and store
        
 
    
     
    The Ground Floor is going to complete in the year of 2018.
                    
    
        
        
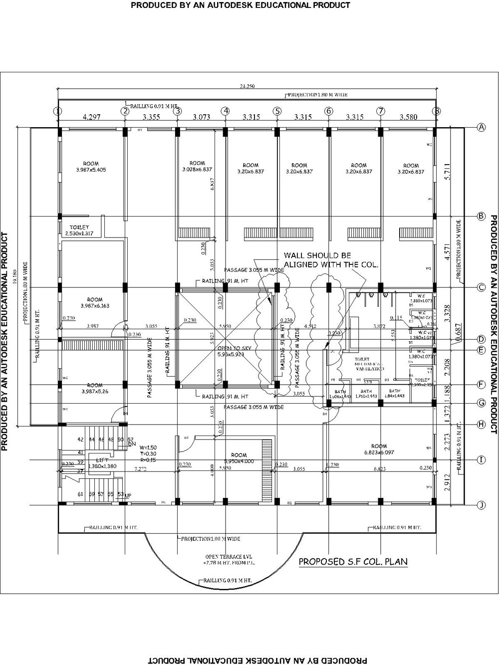
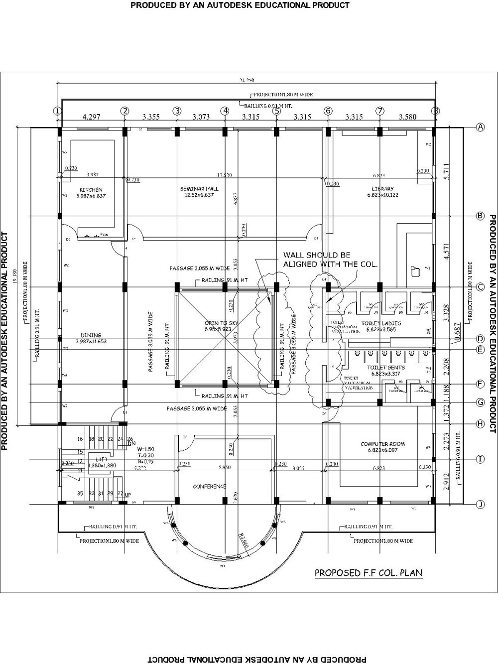
            1st Floor-under construction
            
                - Conference Hall
 
                - Library
 
                - 	Coaching center for competitive exams
 
                - 	Computer center, sewing center skill development center
 
                - Mess for students
 
            
         
     
 
                    
                        
                            
                            
                                2nd floor-Proposed
                                12 rooms for hostels, for unemployed and students for study.
                             
                         
                     
                    
                        
                            
                            
                                3rd Floor-Proposed
                                
                                    12 Rooms for Hostels as required.
                                
                                -open space 20’*20’ for air from ground floor to fourth floor  DOM. 
Grant obtained from govt.
                                
                                    - Rs. 21 lacs on 1-8-2014 from Sh. Bhupinder singh Hooda Ex Hon'ble Chief Minister of Haryana Laid down Foundation stone of Ambedkar Bhawan.
 
                                    - 
                                        Rs. 5 Lacs from Sh. Karan Dev Kamboj Hon'ble  state minister on 14-4-2015 for construction.
                                    
 
                                    - 
                                        Rs. 2 lacs from Sardar Bakhsis Singh MLA and Hon'ble CPS for construction on 28-1-2016.
                                    
 
                                    - 
                                        Rs. 10 Lacs from Sh. Ashwani Chopra Hon'ble Member parliament karnal for construction on 28-1-2016 (Announced Rs. 31 Lacs)
                                    
 
                                    - 
                                        Rs. 15 Lacs from Sh. Manohar Lal Khatter Hon'ble Chief Minister Haryana on 31-3-2017.
                                    
 
                                    - 
                                        Rs. 5 Lacs from Sh. Manohar Lal Khatter Hon'ble Chief Minister for construction on 31-3-2018.
                                    
 
                                
                             
                         
                     
    
    
    
    
    
                    
                    
                    
                        
                    
                    
                    
                    
                        
    	
                        
                        	
                        
                        
                          	
                        
                        
                            
                        
    
                    
Project Cost
                    The total project cost of Project of Ambedkar Bhawan is about Rs. 2.75 crores.
                    
                        Donation collected from society about Rs. 35 Lacs
                    
Ambedkar Bhawan under Construction